banner
Trennlinie







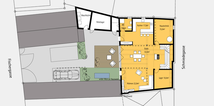
Der Wunsch der Bauherren war es, das Gebälk der alten Scheune sichtbar zu lassen und den Innenraum in ein modernes Wohndomizil zu verwandeln. Es entstanden großzügige, licht durchflutete Räume in denen auf unterschiedlichen Ebenen die ursprüngliche Tragkonstruktion erhalten und mit modernen Elementen kombiniert werden sollte. Ein Energiekonzept wurde in die Planung integriert, denn auch dieser Umbau stellt zwingend die Anforderung als „Ruhesitz“ zukunftsfähig d.h. energiesparend zu sein.



zurück zur Projektübersicht






Trennlinie